Subasta
Icono favorito activo Icono favorito inactivo

43 South Lambeth Road, London, SW8 1RH

  • Subasta
  • Lote -
  • Reino Unido
  • Piso
  • Residencial

Vendido por £1,200,000

Resumen de la propiedad

  • This sale is conditional and is subject to confirmation by the seller, who will accept or decline the highest bid no longer than two working days from the bidding closing time. 
  • This listing is provided in association with Foxtons, London's leading estate agent
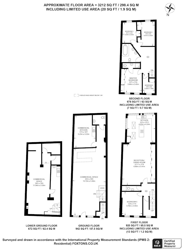
  • Two floors of commercial space to the lower and ground floors with recent substantial works to the basement including full tanking
  • Duplex, maisonette to first and second floors
  • Five bedrooms, family bathroom and guest WC with substantial reception with space to entertain
  • Commercial premise has A3 consent amongst other options for development
  • Potential to benefit from new September legislation to convert building without planning change of use
  • Approximate gross internal floor area 3212 sqft (298.4 sqm)

Contactar con nosotros

Ian Bullimore
Ian Bullimore
El equipo está para ayudarte
Lewis Austin
Lewis Austin
Agente colaborador, para ayudarte aquí
Hannah Cooper
Abogado del Vendedor

Contactar con nosotros

Ian Bullimore
Ian Bullimore
El equipo está para ayudarte
Lewis Austin
Lewis Austin
Agente colaborador, para ayudarte aquí
Hannah Cooper
Abogado del Vendedor

Descargas

Descripción de la propiedad

Offering a unique development opportunity to update and personalize a four floor, mid terrace building currently arranged with two floors of commercial space and a five bedroom duplex apartment.

Additional Comments

BidX1 and Foxtons are working in Partnership as Joint Agents for the online auction and due to this any enquiries, viewings, bids or offers on the property will require your details to be shared between both Bidx1 & Foxtons.

Viewings are by appointment only unless open house times are displayed, please contact us to book your appointment with our Auction teams.

Subject to confirmation

This means the buyer is invited to make an offer at or above the opening bid price of the listed property. Once bidding is closed, the vendor has 48 hours to decide if they want to accept the highest bid or not. If you are not the highest bidder your participation fee will be refunded in full within a maximum of 5 business days (unless delayed by the card provider) post the bidding closing time. If you are successful following vendor acceptance, in accordance with the authority you provided on registration, BidX1 will sign legally binding contracts relating to the sale of the property on behalf of the you and the vendor.
The invited opening bid is not to be considered as a guide price and is not an indication of the reserve price.

Ubicación

Located in the heart of Vauxhalls urban regeneration.Lambeth Road is a bustling artery serving Vauxhall, Stockwell and Oval and offers a stretch of local shops and eateries and easy access to Vauxhall Park. Transport links are in abundance with Vauxhall Cross a short walk away.

Estado de Ocupación

Freehold

Estado ocupacional

Five bedrooms / two bathrooms - one en suite / separate wc / kitchen reception / ground floor and lower ground floor commercial spaces

Impuestos

Por favor refiérase a los documentos legales

Comisión de Compra

A Buyer's Fee of £2,400 (inclusive of VAT) is applicable to the successful purchaser of this lot. If you have not made the successful bid for the property, the Buyer's Fee will be refunded to you.

Enlaces Útiles

*Términos y condiciones

Buyers are strongly advised to read these terms and conditions, and check the Special Conditions and any applicable Addendum, prior to bidding on a Lot. Additional costs, charges and encumbrances may apply for Buyers once they have made a successful bid in relation to a property.

  1. The reserve price is the minimum price at which the property can be sold at auction.
  2. Where a guide price (or range of prices) is given, that guide is the minimum price at which, or range of prices within which, the seller may be prepared to sell on the date on which the guide price, or range of prices, is published. The sale price, whether prior to or at the auction, can be above or below the guide price depending upon market activity. BidX1 and the seller accept no responsibility for any losses, costs or damages incurred by a buyer as a result of relying on any guide price. The buyer must decide how much they should bid for any Lot. All guide prices are quoted subject to contract. Guide prices given by BidX1 or the seller cannot be accepted by the buyer as being a professional valuation for any purpose in accordance with the requirements or guidance notes of relevant professional bodies or other authorities.
  3. Both the guide price and the reserve price may be subject to change up to and including the day of the auction. Whilst every effort is made to ensure that these guides are not misleading, it is possible that the reserve price set for any Lot may exceed the previously quoted guide price (as the seller may fix the final reserve price just before bidding commences).
  4. The guide price for the Lot does not include the Buyer’s Fee charged by BidX1. This fee will be displayed on each Lot listing. In addition, the guide price does not include VAT on the sale price, or any additional costs, charges or encumbrances that might apply to some Lots and/or some buyers. The Special Conditions of Sale of the seller, and any applicable Addendum, will state if there are other costs, charges or encumbrances and whether the seller has elected to charge VAT on the sale price.
  5. To participate in the sale, BidX1 must hold a minimum amount from all bidders. This participation amount and buyer’s fee is fully refundable in the event that you are not the successful purchaser. For example, a participation fee of £5,000 comprises £3,500 relating to your bidder security (partial deposit payment) and a buyer’s fee payable directly to BidX1. A higher participation amount may be payable depending on the reserve price of the Lot.
  6. Please note that Lots may be sold or withdrawn prior to auction.
  7. All Lots sold “Subject to Vendor Confirmation” will be subject to acceptance and confirmation by the Vendor. The highest bid will be presented to the Vendor, the Vendor will have to either accept, decline or make a counteroffer, within the confirmation period. Should the Vendor decide to make a counteroffer, then a private link will be sent to the Highest Bidder advising of the offer the Vendor is willing to accept. The Highest Bidder will be obliged to accept or reject the Vendor's counteroffer. The Vendor reserves the ultimate right, apart from the auctioneer, to accept and to decline to sell to the highest or any bidder, without giving any reasons.
  8. No information, statement, description, quantity or measurement contained in any sales particulars or given orally or contained in any webpage, brochure, catalogue, email, letter, report, docket or hand out issued by or on behalf of BidX1 or the seller in respect of the property shall constitute a representation or a condition or a warranty on behalf of BidX1 or the seller. Any information, statement, description, quantity or measurement so given or contained in any such sales particulars, webpage, brochure, catalogue, email, letter, report or hand out issued by or on behalf of BidX1 or the seller are for illustration purposes only and are not to be taken as matters of fact. Any mistake, omission, inaccuracy or mis-description given orally or contained in any sales particulars, webpage, brochure, catalogue, email, letter, report or hand out issued by or on behalf of BidX1 or the seller shall not give rise to any right of action, claim, entitlement or compensation against BidX1 or the seller. All bidders must satisfy themselves by carrying out their own independent due diligence, inspections or otherwise as to the correctness of any and all of the information, statements, descriptions, quantity or measurements contained in any such sales particulars, webpage, brochure, catalogue, email, letter, report or hand out issued by or on behalf of BidX1 or the seller.
días horas minutos segundo segundos Ofertas Cerradas