Auction
Favourite icon active Favourite icon inactive

Malmaison Apartments, 8 William Jessop Way, Liverpool, L3 1EJ

  • Auction
  • Lot 08
  • United Kingdom
  • Apt Block
  • Residential

Sold for £2,200,000

Property Summary

  • By order of the LPA Receivers
  • 13 self-contained apartments
  • Long leasehold 138 years remaining
  • Full vacant possession

Contact Us

Joel Ferree
Joel Ferree
Property Agent, here to help.

Contact Us

Joel Ferree
Joel Ferree
Property Agent, here to help.

Downloads

icon-download

Property description

A portfolio of 13 apartments comprising 7 x 1 bedroom flats, 2 x 2 bedroom flats and 4 x 3 bedroom flats arranged from floors 7 – 11. The building is mixed use with the lower floors forming the Malmaison Hotel.

Location

Situated above the Malmaison Hotel on Princes Dock. There are a wide range of shopping facilities nearby along with a number of bars and restaurants. 
Transport links nearby include James Street station on the Mersey Rail and Moorfields railway station.    
 

Tenure

Leasehold - All units held on individual leases for a term of 138 years from 2008 at a ground rent to be advised

Accommodation

 

Additional Details

UnitFloor AccommodationGIA
37 Open plan reception room/kitchen, bedroom, bathroom/wc, balcony547 sq.ft
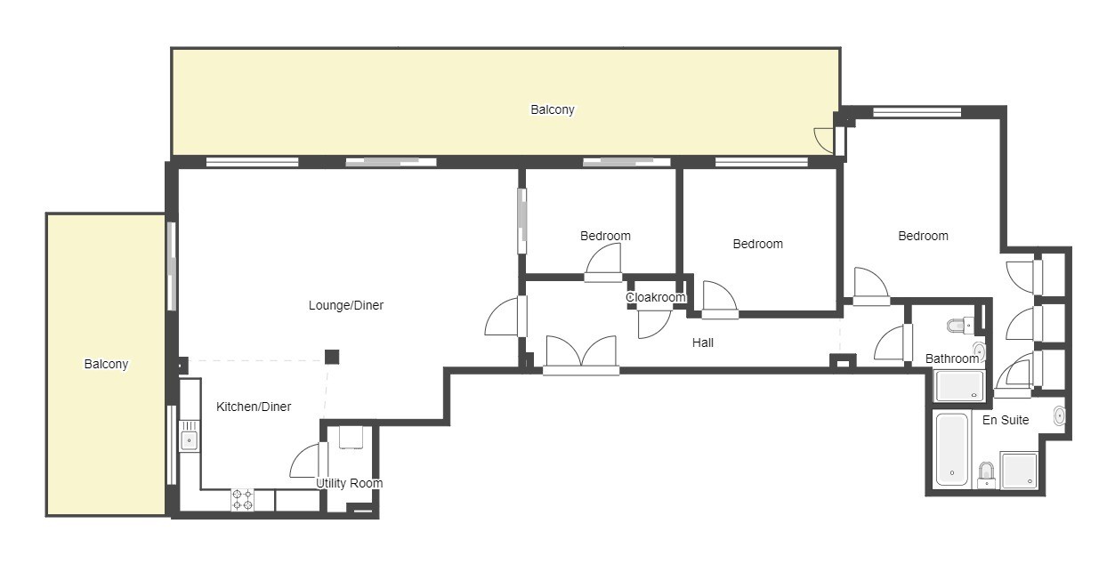
47 Open plan reception room/kitchen, two bedrooms, one with en-suite bathroom/wc, separate shower room/wc, balcony823 sq.ft
77 Open plan reception room/kitchen, bedroom, bathroom/wc, balcony547 sq.ft
107 Open plan reception room/kitchen, bedroom, bathroom/wc, balcony547 sq.ft
158 Open plan reception room/kitchen, bedroom, bathroom/wc, balcony547 sq.ft
168 Open plan reception room/kitchen, two bedrooms, one with en-suite bathroom/wc, separate shower room/wc, balcony823 sq.ft
198 Open plan reception room/kitchen, bedroom, bathroom/wc, balcony547 sq.ft
269 Open plan reception room/kitchen, bedroom, bathroom/wc, balcony547 sq.ft
319 Open plan reception room/kitchen, bedroom, bathroom/wc, balcony547 sq.ft
4611 Open plan reception room/kitchen, three bedrooms, one with en-suite bathroom/wc, separate shower room/wc, two roof terraces1,323 sq.ft
4711 Open plan reception room/kitchen, three bedrooms, one with en-suite bathroom/wc, separate shower room/wc, two roof terraces1,555 sq.ft
4811 Open plan reception room/kitchen, three bedrooms, one with en-suite bathroom/wc, separate shower room/wc, two roof terraces1,387 sq.ft
4911 Open plan reception room/kitchen, three bedrooms, one with en-suite bathroom/wc, separate shower room/wc, two roof terraces1,513 sq.ft

Note: Floorplans, EPC's and  internal images can be found through the website.

Note 1: Estimated Rental Value approximately £142,000 per annum. Prospective purchasers should rely on their own enquiries in this regard.

 

VAT

Please refer to Legal Documents

Buyer's Fee

A Buyer's Fee of £1,250 (inclusive of VAT) is applicable to the successful purchaser of this lot. If you have not made the successful bid for the property, the Buyer's Fee will be refunded to you.

Helpful links

*Terms & Conditions

Buyers are strongly advised to read these terms and conditions, and check the Special Conditions and any applicable Addendum, prior to bidding on a Lot. Additional costs, charges and encumbrances may apply for Buyers once they have made a successful bid in relation to a property.

  1. The reserve price is the minimum price at which the property can be sold at auction.
  2. Where a guide price (or range of prices) is given, that guide is the minimum price at which, or range of prices within which, the seller may be prepared to sell on the date on which the guide price, or range of prices, is published. The sale price, whether prior to or at the auction, can be above or below the guide price depending upon market activity. BidX1 and the seller accept no responsibility for any losses, costs or damages incurred by a buyer as a result of relying on any guide price. The buyer must decide how much they should bid for any Lot. All guide prices are quoted subject to contract. Guide prices given by BidX1 or the seller cannot be accepted by the buyer as being a professional valuation for any purpose in accordance with the requirements or guidance notes of relevant professional bodies or other authorities.
  3. Both the guide price and the reserve price may be subject to change up to and including the day of the auction. Whilst every effort is made to ensure that these guides are not misleading, it is possible that the reserve price set for any Lot may exceed the previously quoted guide price (as the seller may fix the final reserve price just before bidding commences).
  4. The guide price for the Lot does not include the Buyer’s Fee charged by BidX1. This fee will be displayed on each Lot listing. In addition, the guide price does not include VAT on the sale price, or any additional costs, charges or encumbrances that might apply to some Lots and/or some buyers. The Special Conditions of Sale of the seller, and any applicable Addendum, will state if there are other costs, charges or encumbrances and whether the seller has elected to charge VAT on the sale price.
  5. To participate in the sale, BidX1 must hold a minimum amount from all bidders. This participation amount and buyer’s fee is fully refundable in the event that you are not the successful purchaser. For example, a participation fee of £5,000 comprises £3,500 relating to your bidder security (partial deposit payment) and a buyer’s fee payable directly to BidX1. A higher participation amount may be payable depending on the reserve price of the Lot.
  6. Please note that Lots may be sold or withdrawn prior to auction.
  7. All Lots sold “Subject to Vendor Confirmation” will be subject to acceptance and confirmation by the Vendor. The highest bid will be presented to the Vendor, the Vendor will have to either accept, decline or make a counteroffer, within the confirmation period. Should the Vendor decide to make a counteroffer, then a private link will be sent to the Highest Bidder advising of the offer the Vendor is willing to accept. The Highest Bidder will be obliged to accept or reject the Vendor's counteroffer. The Vendor reserves the ultimate right, apart from the auctioneer, to accept and to decline to sell to the highest or any bidder, without giving any reasons.
  8. No information, statement, description, quantity or measurement contained in any sales particulars or given orally or contained in any webpage, brochure, catalogue, email, letter, report, docket or hand out issued by or on behalf of BidX1 or the seller in respect of the property shall constitute a representation or a condition or a warranty on behalf of BidX1 or the seller. Any information, statement, description, quantity or measurement so given or contained in any such sales particulars, webpage, brochure, catalogue, email, letter, report or hand out issued by or on behalf of BidX1 or the seller are for illustration purposes only and are not to be taken as matters of fact. Any mistake, omission, inaccuracy or mis-description given orally or contained in any sales particulars, webpage, brochure, catalogue, email, letter, report or hand out issued by or on behalf of BidX1 or the seller shall not give rise to any right of action, claim, entitlement or compensation against BidX1 or the seller. All bidders must satisfy themselves by carrying out their own independent due diligence, inspections or otherwise as to the correctness of any and all of the information, statements, descriptions, quantity or measurements contained in any such sales particulars, webpage, brochure, catalogue, email, letter, report or hand out issued by or on behalf of BidX1 or the seller.
days hours minutes second seconds Bidding Closed