Auction
Favourite icon active Favourite icon inactive

96 High Street, Stockton on Tees, TS18 1BD

  • Auction
  • Lot 10
  • United Kingdom
  • Public House
  • Commercial

Sold for £206,500

Property Summary

  • Freehold public house investment
  • Approximately 592 sq m (6,370 sq ft)
  • Town centre location
  • Prominent trading position
  • New lease renewal for a term of 10 years (1)
  • Tenant been in occupation since 2015
  • Future alternative use potential (subject to consents)
  • Producing £24,000 per annum (2)

Contact Us

Simon Bailey
Simon Bailey
Property Agent, here to help.
Joe I’Anson
Joe I’Anson
Joint Agent, here to help.
Gabriella Slater
Vendor's Solicitor

Contact Us

Simon Bailey
Simon Bailey
Property Agent, here to help.
Joe I’Anson
Joe I’Anson
Joint Agent, here to help.
Gabriella Slater
Vendor's Solicitor

Downloads

Property description

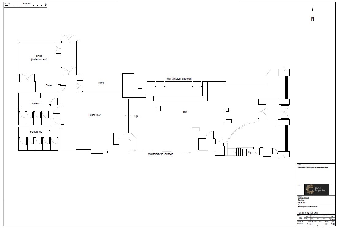
A mid-terraced part three storey/part single storey building of traditonal construction arranged over ground, first and second floors totalling approximately 592 sq m (6,370 sq ft). The ground floor is arranged as a bar/nightclub with rear ancillary accommodation. The first floor is arranged as a one bedroom flat plus office and rear storage/ancillary accommodation and the second floor is arranged as additional storage/ancillary accommodation. The upper floors may lend themselves to future alternative uses, subject to obtaining the necessary consents. To the rear of the building is a public pay and display car park accessed from West Row.

Location

The market town of Stockton-on-Tees lies within County Durham about 10 miles east of Darlington and 21 miles south east of Durham. It can be accessed via the A66(M) and A19 with the former providing access to the A1(M) to the west. Stockton railway station provides regional rail services and Teesside International Airport lies about 8 miles to the south west. The town has recently benefitted from a £60m regeneration of the High Street, which is the widest in the UK. 

High Street is the main shopping thoroughfare in the town centre. The property commands a prominent position on the west side of High Street near its junction with Yarm Lane with notable nearby occupiers including Betfred and Age UK.

Planning

Stockton-on-Tees Borough Council (01642 525022) - www.stockton.gov.uk

Tenure

Freehold

Additional Details

Floor

Accommodation

Tenancy

Rent (£pa)

Ground

First

Second

Bar/nightclub, ancillary/storage, WCs

One bedroom flat, office, ancillary/storage

Ancillary/storage

Let to an individual t/a The Riverbank for a term expiring 26/03/2025. A reversionary new lease has been signed for a term of 10 years from 27/03/2025 (1)

£24,000 (2)

Total

592 sq m (6,370 sq ft)

 

£24,000 (2)

(1) There is a tenant's break clause and an upwards only rent review at the end of the fifth year of the new lease.

(2) The new lease includes a three month rent free period. This will be structured as £1,500 + VAT per month for the 12 month period commencing on 23.05.2024 and thereafter reverting to £2,000 + VAT per month. The rent free will be topped up by the Seller on completion.

(3) The auctioneers have not measured the property. All floor areas have been obtained from the EPC. 

VAT

VAT is applicable to this sale, please refer to the legal documents for further details.

Buyer's Fee

A Buyer's Fee of £2,400 (inclusive of VAT) is applicable to the successful purchaser of this lot. If you have not made the successful bid for the property, the Buyer's Fee will be refunded to you.

Energy Performance Indicator

Rating 39 Band B

Helpful links

*Terms & Conditions

Buyers are strongly advised to read these terms and conditions, and check the Special Conditions and any applicable Addendum, prior to bidding on a Lot. Additional costs, charges and encumbrances may apply for Buyers once they have made a successful bid in relation to a property.

  1. The reserve price is the minimum price at which the property can be sold at auction.
  2. Where a guide price (or range of prices) is given, that guide is the minimum price at which, or range of prices within which, the seller may be prepared to sell on the date on which the guide price, or range of prices, is published. The sale price, whether prior to or at the auction, can be above or below the guide price depending upon market activity. BidX1 and the seller accept no responsibility for any losses, costs or damages incurred by a buyer as a result of relying on any guide price. The buyer must decide how much they should bid for any Lot. All guide prices are quoted subject to contract. Guide prices given by BidX1 or the seller cannot be accepted by the buyer as being a professional valuation for any purpose in accordance with the requirements or guidance notes of relevant professional bodies or other authorities.
  3. Both the guide price and the reserve price may be subject to change up to and including the day of the auction. Whilst every effort is made to ensure that these guides are not misleading, it is possible that the reserve price set for any Lot may exceed the previously quoted guide price (as the seller may fix the final reserve price just before bidding commences).
  4. The guide price for the Lot does not include the Buyer’s Fee charged by BidX1. This fee will be displayed on each Lot listing. In addition, the guide price does not include VAT on the sale price, or any additional costs, charges or encumbrances that might apply to some Lots and/or some buyers. The Special Conditions of Sale of the seller, and any applicable Addendum, will state if there are other costs, charges or encumbrances and whether the seller has elected to charge VAT on the sale price.
  5. To participate in the sale, BidX1 must hold a minimum amount from all bidders. This participation amount and buyer’s fee is fully refundable in the event that you are not the successful purchaser. For example, a participation fee of £5,000 comprises £3,500 relating to your bidder security (partial deposit payment) and a buyer’s fee payable directly to BidX1. A higher participation amount may be payable depending on the reserve price of the Lot.
  6. Please note that Lots may be sold or withdrawn prior to auction.
  7. All Lots sold “Subject to Vendor Confirmation” will be subject to acceptance and confirmation by the Vendor. The highest bid will be presented to the Vendor, the Vendor will have to either accept, decline or make a counteroffer, within the confirmation period. Should the Vendor decide to make a counteroffer, then a private link will be sent to the Highest Bidder advising of the offer the Vendor is willing to accept. The Highest Bidder will be obliged to accept or reject the Vendor's counteroffer. The Vendor reserves the ultimate right, apart from the auctioneer, to accept and to decline to sell to the highest or any bidder, without giving any reasons.
  8. No information, statement, description, quantity or measurement contained in any sales particulars or given orally or contained in any webpage, brochure, catalogue, email, letter, report, docket or hand out issued by or on behalf of BidX1 or the seller in respect of the property shall constitute a representation or a condition or a warranty on behalf of BidX1 or the seller. Any information, statement, description, quantity or measurement so given or contained in any such sales particulars, webpage, brochure, catalogue, email, letter, report or hand out issued by or on behalf of BidX1 or the seller are for illustration purposes only and are not to be taken as matters of fact. Any mistake, omission, inaccuracy or mis-description given orally or contained in any sales particulars, webpage, brochure, catalogue, email, letter, report or hand out issued by or on behalf of BidX1 or the seller shall not give rise to any right of action, claim, entitlement or compensation against BidX1 or the seller. All bidders must satisfy themselves by carrying out their own independent due diligence, inspections or otherwise as to the correctness of any and all of the information, statements, descriptions, quantity or measurements contained in any such sales particulars, webpage, brochure, catalogue, email, letter, report or hand out issued by or on behalf of BidX1 or the seller.
days hours minutes second seconds Bidding Closed