Auction
Favourite icon active Favourite icon inactive

Flat 1, 11-12 Market Place, Wantage, OX12 8AB

  • Auction
  • Lot -
  • United Kingdom
  • Flat
  • Residential

Withdrawn Prior

Property Summary

  • Long leasehold residential development opportunity (subject to planning)
  • Town centre location in an affluent and attractive market town
  • Approximately 72.32 sq m (778 sq ft)
  • Lapsed planning consent for conversion to a two bedroom flat
  • Vacant possession

 

Contact Us

Simon Bailey
Simon Bailey
Property Agent, here to help.
Jeremy Hodson
Vendor's Solicitor

Contact Us

Simon Bailey
Simon Bailey
Property Agent, here to help.
Jeremy Hodson
Vendor's Solicitor

Downloads

Property description

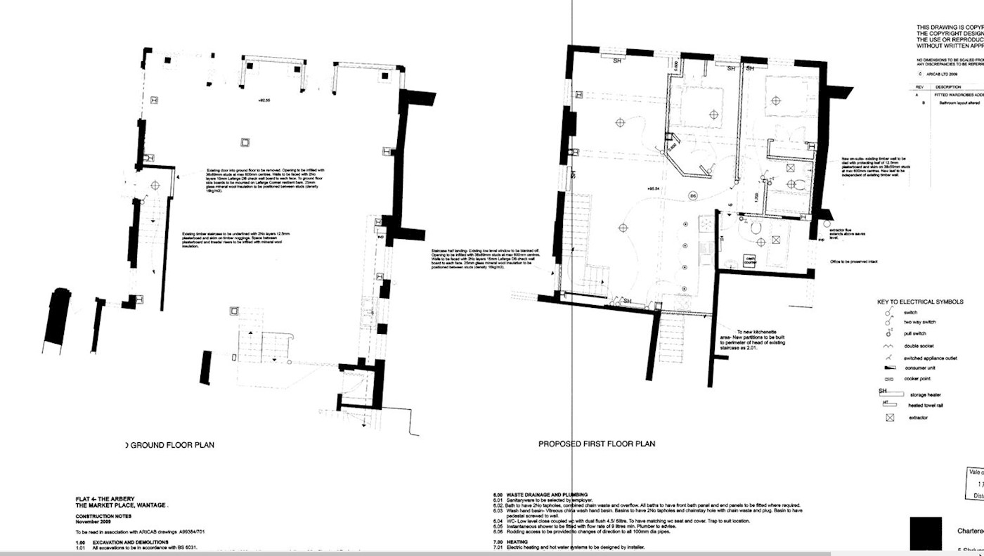
The first floor only of a larger, three storey Grade II listed building of traditional construction beneath a pitched roof totalling approximately 72.32 sq m (778 sq ft). The property was previously used as retail but has lapsed planning consent for conversion to residential (see Planning Details). The property benefits from its own entrance from Market Place and as such is completely self-contained.

Location

Wantage is an historic market town situated about 15 miles south west of Oxford, 14 miles north west of Newbury and 20 miles east of Swindon. The A417 provides direct access to the A34 trunk road about 6 miles to the east and the A420 trunk road about 8 miles to the north west whilst the A338 provides direct access to the M4 motorway at junction 14 about 11 miles to the south. The town is served by numerous bus services serving nearby towns and villages including Abingdon, Didcot, Faringdon and Oxford and Didcot Parkway railway station lies about 8 miles to the east providing national and regional rail services to destinations including London Paddington, Reading, Oxford, Bristol and Cardiff.

The property lies on the south side of Market Place, which is the main shopping thoroughfare in the town. The property lies above Costa Coffee, adjacent to Greggs with access from the side of the building.

Planning

Planning permission was granted in 2011 for conversion to a two bedroom flat (Application No: WAN/16246/43). We understand that this permission has now lapsed so prospective purchasers are advised to make their own enquiries of the local planning authority, Vale of White Horse District Council (01235 422422) - www.whitehorsedc.gov.uk (this link provides direct access to the planning application and subsequent Decision Notice).

Tenure

Long leasehold for a term of 150 years from 01/01/2015 at a fixed ground rent of £50 per annum

VAT

Please refer to Legal Documents

Buyer's Fee

A Buyer's Fee of £2,000 (inclusive of VAT) is applicable to the successful purchaser of this lot. If you have not made the successful bid for the property, the Buyer's Fee will be refunded to you.

Energy Performance Indicator

An EPC is not required due to the building being Grade II listed

Helpful links

*Terms & Conditions

Buyers are strongly advised to read these terms and conditions, and check the Special Conditions and any applicable Addendum, prior to bidding on a Lot. Additional costs, charges and encumbrances may apply for Buyers once they have made a successful bid in relation to a property.

  1. The reserve price is the minimum price at which the property can be sold at auction.
  2. Where a guide price (or range of prices) is given, that guide is the minimum price at which, or range of prices within which, the seller may be prepared to sell on the date on which the guide price, or range of prices, is published. The sale price, whether prior to or at the auction, can be above or below the guide price depending upon market activity. BidX1 and the seller accept no responsibility for any losses, costs or damages incurred by a buyer as a result of relying on any guide price. The buyer must decide how much they should bid for any Lot. All guide prices are quoted subject to contract. Guide prices given by BidX1 or the seller cannot be accepted by the buyer as being a professional valuation for any purpose in accordance with the requirements or guidance notes of relevant professional bodies or other authorities.
  3. Both the guide price and the reserve price may be subject to change up to and including the day of the auction. Whilst every effort is made to ensure that these guides are not misleading, it is possible that the reserve price set for any Lot may exceed the previously quoted guide price (as the seller may fix the final reserve price just before bidding commences).
  4. The guide price for the Lot does not include the Buyer’s Fee charged by BidX1. This fee will be displayed on each Lot listing. In addition, the guide price does not include VAT on the sale price, or any additional costs, charges or encumbrances that might apply to some Lots and/or some buyers. The Special Conditions of Sale of the seller, and any applicable Addendum, will state if there are other costs, charges or encumbrances and whether the seller has elected to charge VAT on the sale price.
  5. To participate in the sale, BidX1 must hold a minimum amount from all bidders. This participation amount and buyer’s fee is fully refundable in the event that you are not the successful purchaser. For example, a participation fee of £5,000 comprises £3,500 relating to your bidder security (partial deposit payment) and a buyer’s fee payable directly to BidX1. A higher participation amount may be payable depending on the reserve price of the Lot.
  6. Please note that Lots may be sold or withdrawn prior to auction.
  7. All Lots sold “Subject to Vendor Confirmation” will be subject to acceptance and confirmation by the Vendor. The highest bid will be presented to the Vendor, the Vendor will have to either accept, decline or make a counteroffer, within the confirmation period. Should the Vendor decide to make a counteroffer, then a private link will be sent to the Highest Bidder advising of the offer the Vendor is willing to accept. The Highest Bidder will be obliged to accept or reject the Vendor's counteroffer. The Vendor reserves the ultimate right, apart from the auctioneer, to accept and to decline to sell to the highest or any bidder, without giving any reasons.
  8. No information, statement, description, quantity or measurement contained in any sales particulars or given orally or contained in any webpage, brochure, catalogue, email, letter, report, docket or hand out issued by or on behalf of BidX1 or the seller in respect of the property shall constitute a representation or a condition or a warranty on behalf of BidX1 or the seller. Any information, statement, description, quantity or measurement so given or contained in any such sales particulars, webpage, brochure, catalogue, email, letter, report or hand out issued by or on behalf of BidX1 or the seller are for illustration purposes only and are not to be taken as matters of fact. Any mistake, omission, inaccuracy or mis-description given orally or contained in any sales particulars, webpage, brochure, catalogue, email, letter, report or hand out issued by or on behalf of BidX1 or the seller shall not give rise to any right of action, claim, entitlement or compensation against BidX1 or the seller. All bidders must satisfy themselves by carrying out their own independent due diligence, inspections or otherwise as to the correctness of any and all of the information, statements, descriptions, quantity or measurements contained in any such sales particulars, webpage, brochure, catalogue, email, letter, report or hand out issued by or on behalf of BidX1 or the seller.
days hours minutes second seconds Bidding Closed