Auction
Favourite icon active Favourite icon inactive

3 Orchard Place, Swaffham, PE37 7NR

  • Auction
  • Lot 21
  • United Kingdom
  • House
  • Residential

Guide Price* £85,000

Bidder Security £3,500 *fully refundable if unsuccessful bidder
Auction Date 23 April
Bidding Opens 11:00 (GMT+1)
Bidding Closes To be Confirmed

Property Viewings

Saturday 11th April – 10am until 10.30am Tuesday 14th April – 10am until 10.30am Friday 17th April – 10am until 10.30am
Phone
+44 (0) 20 7703 4401
Email
info@uk.bidx1.com

Property Summary

  • By order of a Housing Association
  • Freehold two floor end of terrace house
  • Three bedrooms
  • Rear garden
  • Full vacant possession
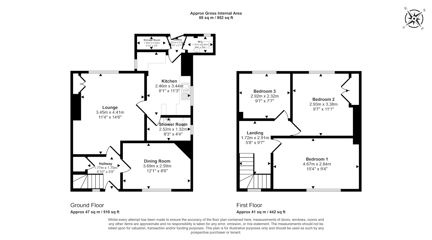
  • GIA approximately 65 sq.m (698 sq.ft)
  • This property cannot be sold prior to auction
  • Open house appointments: Saturday 11th April at 10:00 - 10:30, Tuesday 14th April at 10:00 - 10:30, Friday 17th April at 10:00 - 10:30
  • Council Tax Band: B
  • EPC Rating: D

Contact Us

Joel Ferree
Joel Ferree
Property Agent, here to help.

Contact Us

Joel Ferree
Joel Ferree
Property Agent, here to help.

Downloads

Property description

A freehold, end of terrace, three-bedroom house, arranged over two floors. The property also benefits from a garden.

Location

Swaffham is located in Norfolk County between King's Lynn and Dereham along the A47. Norwich is approximately 31 miles east of Swaffham and King's Lynn is 12 miles to the west. A popular market town, Swaffham offers a local market on most Saturdays as well as a having a number of pubs and restaurants. Orchard Place is off Clay Road, close to London Road and the centre of town.

Tenure

Freehold

Accommodation

First floor: Three bedrooms

Ground floor: Dining room, Lounge, Kitchen, Shower room, Storage room, WC

Outside: Garden

VAT

Please refer to Legal Documents

Additional Information

Ability to Buy: This property is being sold under Unconditional Auction Rules creating a legally binding contract at the conclusion of the timed auction. DO NOT bid unless you can complete the sale within 28 days, or on the terms specified within the Special Conditions of Sale.

If you REQUIRE A MORTGAGE for this purchase, we strongly recommend that you receive your mortgage offer before you bid. An Agreement in Principle (AIP) is not enough due to the fact that if you are the successful bidder and wait to secure funding after the auction and if your lender will not lend on the property (for whatever reason) and you fail to complete, you will lose your deposit and any associated costs.

Buyer's Fee

A Buyer's Fee of £3,000 (inclusive of VAT) is applicable to the successful purchaser of this lot. If you have not made the successful bid for the property, the Buyer's Fee will be refunded to you.

EPC Rating

D

Council Tax Band

B

Helpful links

*Terms & Conditions

Buyers are strongly advised to read these terms and conditions, and check the Special Conditions and any applicable Addendum, prior to bidding on a Lot. Additional costs, charges and encumbrances may apply for Buyers once they have made a successful bid in relation to a property.

  1. The reserve price is the minimum price at which the property can be sold at auction.
  2. Where a guide price (or range of prices) is given, that guide is the minimum price at which, or range of prices within which, the seller may be prepared to sell on the date on which the guide price, or range of prices, is published. The sale price, whether prior to or at the auction, can be above or below the guide price depending upon market activity. BidX1 and the seller accept no responsibility for any losses, costs or damages incurred by a buyer as a result of relying on any guide price. The buyer must decide how much they should bid for any Lot. All guide prices are quoted subject to contract. Guide prices given by BidX1 or the seller cannot be accepted by the buyer as being a professional valuation for any purpose in accordance with the requirements or guidance notes of relevant professional bodies or other authorities.
  3. Both the guide price and the reserve price may be subject to change up to and including the day of the auction. Whilst every effort is made to ensure that these guides are not misleading, it is possible that the reserve price set for any Lot may exceed the previously quoted guide price (as the seller may fix the final reserve price just before bidding commences).
  4. The guide price for the Lot does not include the Buyer’s Fee charged by BidX1. This fee will be displayed on each Lot listing. In addition, the guide price does not include VAT on the sale price, or any additional costs, charges or encumbrances that might apply to some Lots and/or some buyers. The Special Conditions of Sale of the seller, and any applicable Addendum, will state if there are other costs, charges or encumbrances and whether the seller has elected to charge VAT on the sale price.
  5. To participate in the sale, BidX1 must hold a minimum amount from all bidders. This participation amount and buyer’s fee is fully refundable in the event that you are not the successful purchaser. For example, a participation fee of £5,000 comprises £3,500 relating to your bidder security (partial deposit payment) and a buyer’s fee payable directly to BidX1. A higher participation amount may be payable depending on the reserve price of the Lot.
  6. Please note that Lots may be sold or withdrawn prior to auction.
  7. All Lots sold “Subject to Vendor Confirmation” will be subject to acceptance and confirmation by the Vendor. The highest bid will be presented to the Vendor, the Vendor will have to either accept, decline or make a counteroffer, within the confirmation period. Should the Vendor decide to make a counteroffer, then a private link will be sent to the Highest Bidder advising of the offer the Vendor is willing to accept. The Highest Bidder will be obliged to accept or reject the Vendor's counteroffer. The Vendor reserves the ultimate right, apart from the auctioneer, to accept and to decline to sell to the highest or any bidder, without giving any reasons.
  8. No information, statement, description, quantity or measurement contained in any sales particulars or given orally or contained in any webpage, brochure, catalogue, email, letter, report, docket or hand out issued by or on behalf of BidX1 or the seller in respect of the property shall constitute a representation or a condition or a warranty on behalf of BidX1 or the seller. Any information, statement, description, quantity or measurement so given or contained in any such sales particulars, webpage, brochure, catalogue, email, letter, report or hand out issued by or on behalf of BidX1 or the seller are for illustration purposes only and are not to be taken as matters of fact. Any mistake, omission, inaccuracy or mis-description given orally or contained in any sales particulars, webpage, brochure, catalogue, email, letter, report or hand out issued by or on behalf of BidX1 or the seller shall not give rise to any right of action, claim, entitlement or compensation against BidX1 or the seller. All bidders must satisfy themselves by carrying out their own independent due diligence, inspections or otherwise as to the correctness of any and all of the information, statements, descriptions, quantity or measurements contained in any such sales particulars, webpage, brochure, catalogue, email, letter, report or hand out issued by or on behalf of BidX1 or the seller.
days hours minutes second seconds Bidding Closed